Našli jste někde lepší cenu? Pošlete nám svůj návrh !

 

Navrhněte férovou cenu
Váš e-mail
 

Našli jste někde lepší cenu? Pošlete nám svůj návrh !

 

Navrhněte férovou cenu
Váš e-mail
 

Krbová kamna a vložky nemají emisní třídy a nejsou plánována žádná omezení jejich používání. Krby ani kamna NEJSOU kotle.  Ověřujte si informace vždy  z důvěryhodných zdrojů - např.  www.aevd.cz

 

 

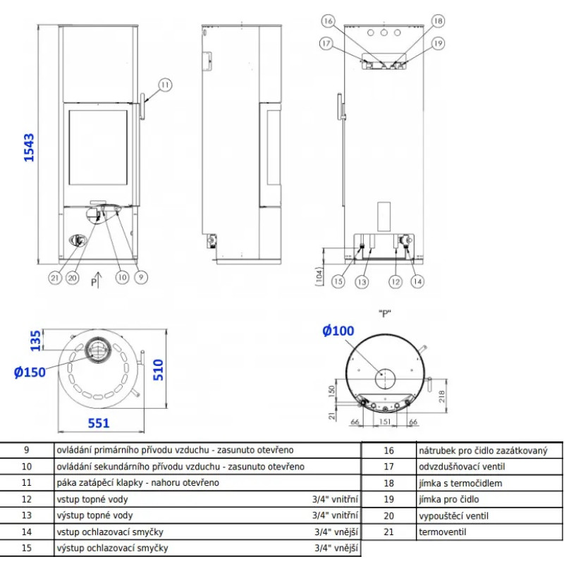
Krbová kamna ABX Trollvik AQUA s TV černý plech

DOPRAVA ZDARMA
Výrobce: ABX
Model: Trollvik AQUA
Dostupnost: Obvykle skladem
Dostupnost produktu Vám upřesní náš specialista
CZK 46003.00
Cena vč. DPH

-8% 46 003 Kč

Množství

Dostupné varianty:

Příslušenství ABX:
  • Adaptér přívodu vzduchu +420  Kč


Trollvik AQUA černý korpus, opláštění černý plech

  • Krbová kamna s teplovodním výměníkem ABX Trollvik Aqua černá jsou vyrobená z kvalitní oceli.
  • Velké prosklení umocní pohled do plápolajícího ohně. 
  • Přiváděný vzduch napomáhá dokonalému spalování a zajišťuje extrémně čisté spaliny, které minimálně znečišťují životní prostředí.
  • Výroba krbových kamen ABX Trollvik Aqua je založená na kvalitním provedení.
  • Kamna splňují nejpřísnější německé a rakouské normy.

Výrobek splňuje limity norem - ČSN EN 16510-1


Pro použití externího přívodu vzduchu je nutné objednat hrdlo pro připojení.

 

Technické parametry...

Vytápění ( teplovodní - teplovzdušné )
teplovodní
Jmenovitý výkon
10 kW
Regulovatelný výkon
3 -5 kW
Vytápěný prostor
100 -240 m3
Teplovodní výměník
ano
Výkon do vody
kW
Regulovaný výkon do vody
2 -7
Výška
1543 mm
Šířka
551 mm
Hloubka
510 mm
Hmotnost
148 kg
Materiál
ocelový plech
Topeniště
vermeculit
Průměr kouřovodu
150 mm
Druh kamen
krbová
Vývod kouřovodu
horní
Přenos tepla vzduchem
sálavé
Spalování
sekundární / primární
Palivo
dřevěné brikety / dřevo
Spotřeba paliva za 1hod
kg
Účinnost
81 %
Minimální tah komínu
12 Pa
CPV - centrální ( externí ) přívod vzduchu
ano
CPV - průměr připojení
100 mm
Provedení kamen
klasická