Našli jste někde lepší cenu? Pošlete nám svůj návrh !

 

Navrhněte férovou cenu
Váš e-mail
 

Krbová kamna a vložky nemají emisní třídy a nejsou plánována žádná omezení jejich používání. Krby ani kamna NEJSOU kotle.  Ověřujte si informace vždy  z důvěryhodných zdrojů - např.  www.aevd.cz

 

 

BeF Twin 8 II

DOPRAVA ZDARMA
Výrobce: BEF
Model: 2098
Dostupnost: Obvykle skladem
Dostupnost produktu Vám upřesní náš specialista
CZK 72969.00
Cena vč. DPH

72 969 Kč

Množství

Dostupné varianty:

Příslušenství BeF:
  • Zazdívací rámeček 1x90° černý BeF Twin (V) 8  +1 452  Kč


Krbová vložka BeF Twin 8 II

  • Průhledová krbová vložka s dvířky otevíranými do strany.
  • Optimalizovaný tvar carconového topeniště vyvinutý pomocí aerodynamického modelu.
  • Nejmasivnější akumulační materiál na trhu carcon, který je až o 100% masivnější než u starších typů. Disponuje ale i mnohem větší akumulační schopností.
  • Strukturovaný aktivní povrch carconů zachycuje partikulární částice s následným dopalováním.
  • Oblíbený formát dveří s černě podbarveným sklem a kličkou potaženou pravou kůží.
  • Regulace hoření u obou stran.
  • Externí přívod vzduchu umožňuje připojení elektronické regulace hoření.
  • Možno doobjednat čtyřstranný zazdívací rámeček s lemem 90st.

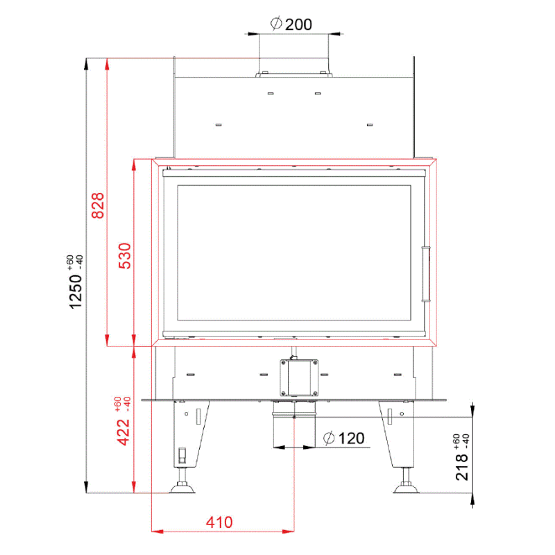
Technické údaje

Jmenovitý výkon celkový

10 kw

Účinnost

80 %

Průměr kouřovodu

200 mm

Rozměr

790x510x517 mm

Váha

197 kg

Vlastní rozměr topeniště

615x320 mm

Teplota spalin

240 °C

Délka polene

50 cm