Našli jste někde lepší cenu? Pošlete nám svůj návrh !

 

Navrhněte férovou cenu
Váš e-mail
 

Krbová kamna a vložky nemají emisní třídy a nejsou plánována žádná omezení jejich používání. Krby ani kamna NEJSOU kotle.  Ověřujte si informace vždy  z důvěryhodných zdrojů - např.  www.aevd.cz

 

 

BeF Therm 6 CL

DOPRAVA ZDARMA
Výrobce: BEF
Model: 1862
Dostupnost: Obvykle skladem
Dostupnost produktu Vám upřesní náš specialista
CZK 59352.00
Cena vč. DPH

59 352 Kč

Množství

Dostupné varianty:

Příslušenství BeF:
  • Zazdívací rámeček 1x90° hloubka 60mm, černý, BeF Therm (V) 6 CP/CL +1 694  Kč


Krbová vložka BeF Therm 6 CL

  • Inovativní oplach skla a bezchybně čisté sklo. Vzduch je veden zády přes nahřívací komory. Ty zajišťují vyšší teplotu přivedeného vzduchu pro oplach skla a pomalejší jeho proudění.
  • Optimalizovaný tvar carconového topeniště vyvinutý pomocí aerodynamického modelu.
  • Nejmasivnější akumulační materiál na trhu carcon, který je až o 100% masivnější než u starších typů. Disponuje ale i mnohem větší akumulační schopností, vydrží nahřátý až 12hodin.
  • Strukturovaný aktivní povrch carconů zachycuje partikulární částice s následným dopalováním.
  • Rohové prosklení s jednodílným ohýbaným sklem a kličkou potaženou pravou kůží.
  • Externí přívod vzduchu umožňuje připojení elektronické regulace hoření.
  • Jednoduché ovládání jedním regulačním prvkem.
  • Možno doobjednat čtyřstranný zazdívací rámeček s lemem 90st.

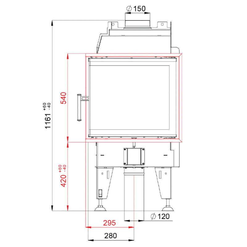
Technické údaje

Jmenovitý výkon celkový

6 kw

Účinnost

82 %

Průměr kouřovodu

150 mm

Rozměr

557x357x510 mm

Váha

126 kg

Vlastní rozměr topeniště

395x295 mm

Teplota spalin

262 °C