Našli jste někde lepší cenu? Pošlete nám svůj návrh !

 

Navrhněte férovou cenu
Váš e-mail
 

Krbová kamna a vložky nemají emisní třídy a nejsou plánována žádná omezení jejich používání. Krby ani kamna NEJSOU kotle.  Ověřujte si informace vždy  z důvěryhodných zdrojů - např.  www.aevd.cz

 

 

BeF Passive 6 CP

DOPRAVA ZDARMA
Výrobce: BEF
Model: 1504
Dostupnost: Obvykle skladem
Dostupnost produktu Vám upřesní náš specialista
CZK 67623.00
Cena vč. DPH

67 623 Kč

Množství

Dostupné varianty:

Příslušenství BeF:
  • Zazdívací rámeček 1x90° hloubka 80mm, černý, BeF Passive Rohová +2 219  Kč


Krbová vložka BeF Passive 6 CP

  • Vhodná do nízkoenergetických a pasivních domů
  • Splňuje Blower Door test
  • Klasické otevírání dveří do boku s kličkou potaženou pravou kůží
  • Dvojité rohové prosklení ve standardu
  • Dvoubodové zavírání dveří
  • Externí přívod vzduchu umožňuje připojení elektronické regulace hoření
  • Speciálně tvarované bezroštové topeniště vyloženo masivním Carconem
  • Zazdívací rámeček s hloubkou 60mm ve standardu

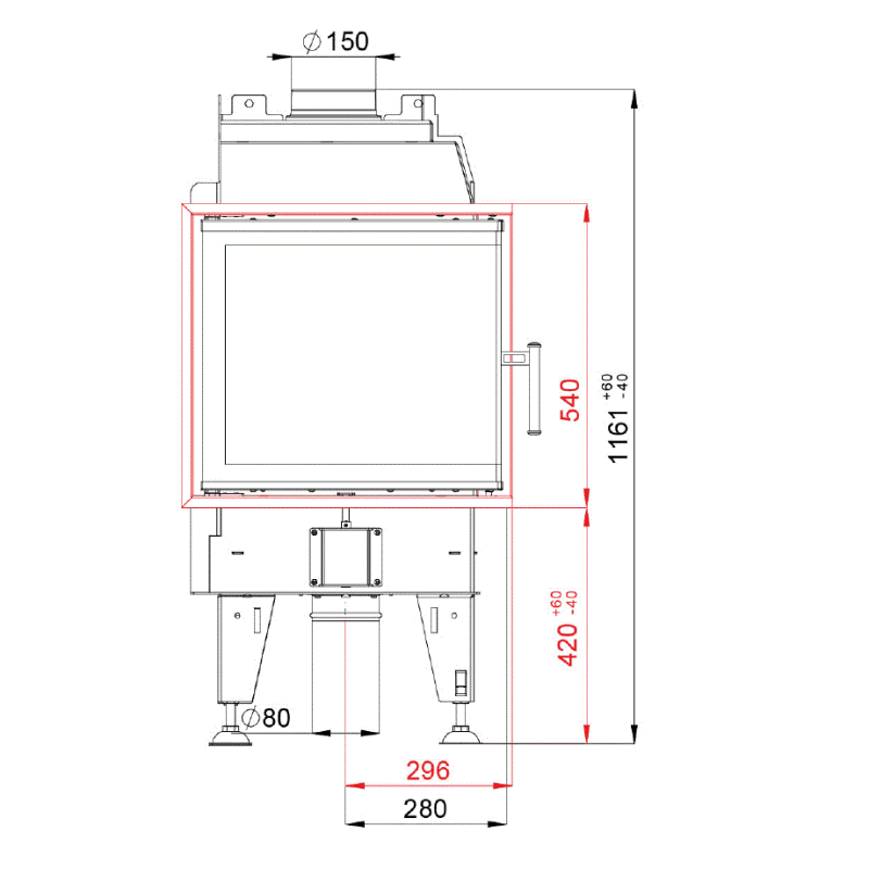
Technické údaje

Jmenovitý výkon celkový

3.8 kw

Účinnost

86 %

Průměr kouřovodu

150 mm

Rozměr

570x520/380x520 mm

Váha

112 kg

Vlastní rozměr topeniště

370x211 mm

Teplota spalin

193 °C