Našli jste někde lepší cenu? Pošlete nám svůj návrh !

 

Navrhněte férovou cenu
Váš e-mail
 

Krbová kamna a vložky nemají emisní třídy a nejsou plánována žádná omezení jejich používání. Krby ani kamna NEJSOU kotle.  Ověřujte si informace vždy  z důvěryhodných zdrojů - např.  www.aevd.cz

 

 

BeF Feel 8 CP

DOPRAVA ZDARMA
Výrobce: BEF
Model: 000-0001809
Dostupnost: Obvykle skladem
Dostupnost produktu Vám upřesní náš specialista
CZK 75803.00
Cena vč. DPH

75 803 Kč

Množství

Dostupné varianty:

Příslušenství BeF:
  • Zazdívací rámeček 1x90° hloubka 60mm, BeF Feel rohová  +1 694  Kč

  • Zazdívací rámeček 1x90° hloubka 80mm, černý +2 536  Kč


BeF Feel 8 CP

  • Inovativní oplach skla a bezchybně čisté sklo. Vzduch je veden zády přes nahřívací komory. Ty zajišťují vyšší teplotu přivedeného vzduchu pro oplach skla a pomalejší jeho proudění.
  • Optimalizovaný tvar carconového topeniště vyvinutý pomocí aerodynamického modelu.
  • Nejmasivnější akumulační materiál na trhu carcon, který je až o 100% masivnější než u starších typů. Disponuje ale i mnohem větší akumulační schopností, vydrží nahřátý až 12hodin.
  • Strukturovaný aktivní povrch carconů zachycuje partikulární částice s následným dopalováním.
  • Externí přívod vzduchu umožňuje připojení elektronické regulace hoření.
  • Jednoduché ovládání jedním regulačním prvkem.
  • Rohové prosklení s jednodílným ohýbaným sklem a kličkou potaženou pravou kůží.
  • Možno doobjednat čtyřstranný zazdívací rámeček s lemem 90st.

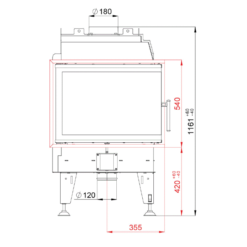
Technické údaje

Jmenovitý výkon celkový

8 kw

Účinnost

85 %

Průměr kouřovodu

180 mm

Rozměr

677x357x510 mm

Váha

129 kg

Vlastní rozměr topeniště

515x215 mm

Teplota spalin

212 °C

Délka polene

40 cm